Szczecin, Śródmieście, Ściegiennego

Mieszkanie na sprzedaż

Opis nieruchomości

Mieszkanie / lokal usługowy na sprzedaż – Szczecin, Śródmieście, ul. Ściegiennego

Na sprzedaż lokal usługowy/mieszkalny o powierzchni 70,04 m², położony na parterze zadbanej kamienicy w Śródmieściu Szczecina, przy ul. Ściegiennego.
Lokal został przrkształcony w uzytkowy z mieszkania i od lat wykorzystywany jako kancelaria, Isnieje możliwość wtórnego przeksztalcenia na lokal mieszkalny.i stworzenie pięknegp,  dużego mieszkania. Utrzymany w  bardzo dobrym stanie technicznym, gotowy do dalszej pracy bez konieczności inwestowania. 

To miejsce idealne dla działalności wymagającej spokoju, prywatności i dobrej dostępności dla klientów.

Świetnie sprawdzi się jako:

  • kancelaria notarialna lub adwokacka
  • biuro doradcze
  • gabinety medyczne
  • gabinet psychologii / psychoterapii
  • inna działalność usługowa

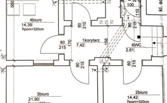
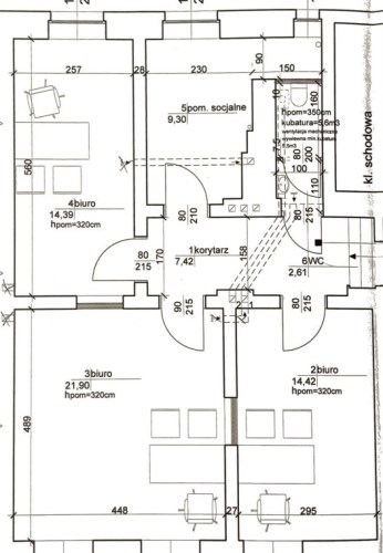
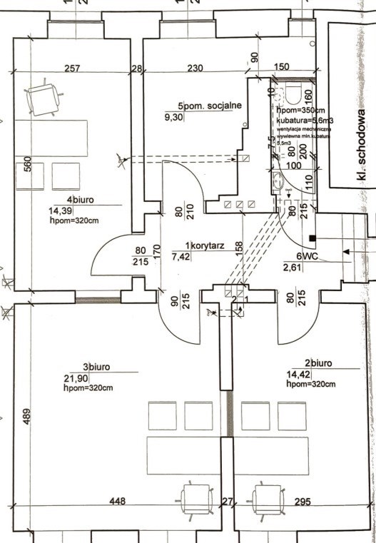
Układ i funkcjonalność:

  • 3 niezależne pokoje – obecnie funkcjonujące jako gabinety
  • recepcja / część obsługi klienta
  • zaplecze socjalne
  • toaleta

Układ czytelny i wygodny, łatwy do ewentualnej adaptacji pod inną branżę.

Najważniejsze atuty:

  • Parter – wygodny dostęp dla klientów
  • Okna od ulicy – dobra widoczność i naturalne światło
  • Lokal usługowy – brak ograniczeń jak przy mieszkaniu
  • Kapitalny remont w 2014 roku – wymienione wszystkie instalacje
  • Lokal zadbany, regularnie odświeżany
  • Możliwość rozpoczęcia działalności od razu
  • Ogrzewanie gazowe
  • Niskie koszty utrzymania – czynsz z funduszem remontowym ok. 420 zł
  • Piwnica
  • Możliwość przejęcia obecnych najemców – opcja idealna dla inwestora, lokal zarabia od pierwszego dnia

To stabilny, dobrze utrzymany lokal w sprawdzonej lokalizacji.
Dobry zarówno do prowadzenia własnej działalności, jak i jako inwestycja z gotowym najemcą.

Zadzwoń i umów się na prezentację

Nota prawna

Opis oferty zawarty na stronie internetowej sporządzany jest na podstawie oględzin nieruchomości oraz informacji uzyskanych od właściciela, może podlegać aktualizacji i nie stanowi oferty określonej w art. 66 i następnych K.C.

Szczegóły oferty

Symbol oferty LNI-MS-188
Powierzchnia 70,04 m²
Powierzchnia użytkowa 70,04 m²
Liczba pokoi 3
Piętro parter
Rodzaj budynku kamienica
Technologia budowlana cegła
Standard
Opłaty wg liczników gaz, prąd
Stan lokalu bardzo dobry
Stan prawny Odrębna własność lokalu
Mies. czynsz admin. 420 PLN
Okna PCV
Instalacje wymienione
Rok budowy 1930
Gaz jest
Ogrzewanie C.O. GAZOWE
Alarm tak
Usytuowanie dwustronne

Pomieszczenia

Liczba WC 1

Lokalizacja

Kalkulator kredytowy

PLN
%
Wysokość raty

Kalkulator kosztów

PLN
PLN
PLN
PLN
PLN
PLN
%
PLN
Podatek od czynności cywilno-prawnych
Taksa notarialna (opłata notarialna)
VAT od taksy notarialnej (opłaty notarialnej)
Wniosek do WKW
VAT od wniosku do WKW
Prowizja agencji nieruchomości
VAT od prowizji agencji nieruchomości
Wypisy aktu notarialnego - około
RAZEM (cena + opłaty)

Podobne oferty

mieszkanie na sprzedaż - Szczecin, Centrum

mieszkanie na sprzedaż

Szczecin, Centrum
3 pokoje 102,12 m2 5 865,65 zł/m2
mieszkanie na sprzedaż - Szczecin, Pogodno

mieszkanie na sprzedaż

Szczecin, Pogodno
5 pokoi 109,55 m2 4 555,00 zł/m2
mieszkanie na sprzedaż - Szczecin, Stare Miasto

mieszkanie na sprzedaż

Szczecin, Stare Miasto
4 pokoje 79,66 m2 7 155,41 zł/m2
mieszkanie na sprzedaż - Szczecin, Centrum

mieszkanie na sprzedaż

Szczecin, Centrum
4 pokoje 103,00 m2 4 466,02 zł/m2

Napisz do nas

Proszę wypełnić to pole
Proszę wypełnić to pole
Proszę wypełnić to pole
Proszę wypełnić to pole
Trwa wysyłanie...

Ta strona wykorzystuje pliki cookies w celach statystycznych oraz w celu dostosowania naszych serwisów do indywidualnych potrzeb klientów. Zmiany ustawień dotyczących plików cookie można dokonać w dowolnej chwili modyfikując ustawienia przeglądarki. Korzystanie z tej strony bez zmian ustawień dotyczących cookies oznacza, że będą one zapisane w pamięci urządzenia.

rozumiem