Szczecin, Centrum, al. Papieża Jana Pawła II

Mieszkanie na sprzedaż

Opis nieruchomości

Do sprzedaży mieszkanie 2 pokojowe, położone w ścisłym centrum Szczecina przy al. Papieża Jana Pawła II.

Adaptacja poddasza. Mieszkanie w bardzo dobrym standardzie, zaaranżowany w nowoczesnym stylu - salon otwarty na przedpokój, połączony z aneksem kuchennym, duża sypialnia. Łazienka połączona z wc. Ekspozycja okien jednostronna, północno wschodnia.

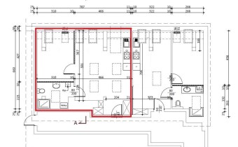
Wymiary pomieszczeń:
- pokój dzienny połączony z aneksem kuchennym 24,49 m2,
- sypialnia 11,54 m2,
- łazienka 6,42 m2,
- korytarz 3,67 m2.

Ogrzewanie i ciepła piec gazowy kondensacyjny z zamkniętą komorą spalania. Czynsz do wspólnoty wynosi 220,00 zł miesięcznie. Możliwość montażu klimatyzacji.

Lokal wykończony pod klucz, w pokojach na podłodze nowe panele, ściany gładzone, malowane, stolarka drzwiowa nowa. Okna połaciowe, drewniane Velux. Kuchnia w formie aneksu umeblowana i wyposażona w sprzęt AGD: płyta elektryczna, piekarnik elektryczny, okap oraz nowa, zabudowana lodówka z zamrażalką. Podłoga w części aneksu wyłożona terakotą. Łazienka razem z wc, duża kabina prysznicowa, na podłodze terakota, ściany wyłożone glazurą, w łazience miejsce na pralkę. W przedpokoju na podłodze terakota, drzwi nowe, antywłamaniowe.

Podana cena jest ceną brutto, zawiera podatek VAT - kupujący nie płaci 2 % podatku PCC.

Polecam!

Nota prawna

Opis oferty zawarty na stronie internetowej sporządzany jest na podstawie oględzin nieruchomości oraz informacji uzyskanych od właściciela, może podlegać aktualizacji i nie stanowi oferty określonej w art. 66 i następnych K.C.

Szczegóły oferty

Symbol oferty NGK-MS-506
Powierzchnia 46,12 m²
Liczba pokoi 2
Piętro 4
Rodzaj budynku kamienica
Technologia budowlana cegła
Standard
Opłaty w czynszu administracja, fundusz remontowy, woda
Opłaty wg liczników gaz, prąd
Liczba pięter w budynku 4
Stan lokalu deweloperski
Stan prawny Własność
Mies. czynsz admin. 220 PLN
Okna drewniane
Instalacje nowe
Balkon brak
Widok na inne budynki
Gaz jest
Woda piec gazowy dwufunkcyjny
Dojazd asfalt
Otoczenie centrum miasta
Ogrzewanie gazowe
Odległość do komunikacji publicznej [m] 20 m
Usytuowanie jednostronne
Klucze tak

Lokalizacja

Kalkulator kredytowy

PLN
%
Wysokość raty

Kalkulator kosztów

PLN
PLN
PLN
PLN
PLN
PLN
%
PLN
Podatek od czynności cywilno-prawnych
Taksa notarialna (opłata notarialna)
VAT od taksy notarialnej (opłaty notarialnej)
Wniosek do WKW
VAT od wniosku do WKW
Prowizja agencji nieruchomości
VAT od prowizji agencji nieruchomości
Wypisy aktu notarialnego - około
RAZEM (cena + opłaty)

Podobne oferty

mieszkanie na sprzedaż - Szczecin, Centrum

mieszkanie na sprzedaż

Szczecin, Centrum
3 pokoje 68,00 m2 6 470,59 zł/m2
mieszkanie na sprzedaż - Szczecin

mieszkanie na sprzedaż

Szczecin
4 pokoje 114,00 m2 3 640,35 zł/m2
mieszkanie na sprzedaż - Szczecin, Centrum

mieszkanie na sprzedaż

Szczecin, Centrum
3 pokoje 102,12 m2 5 865,65 zł/m2
mieszkanie na sprzedaż - Szczecin, Pogodno

mieszkanie na sprzedaż

Szczecin, Pogodno
5 pokoi 109,55 m2 4 555,00 zł/m2

Napisz do nas

Proszę wypełnić to pole
Proszę wypełnić to pole
Proszę wypełnić to pole
Proszę wypełnić to pole
Trwa wysyłanie...

Ta strona wykorzystuje pliki cookies w celach statystycznych oraz w celu dostosowania naszych serwisów do indywidualnych potrzeb klientów. Zmiany ustawień dotyczących plików cookie można dokonać w dowolnej chwili modyfikując ustawienia przeglądarki. Korzystanie z tej strony bez zmian ustawień dotyczących cookies oznacza, że będą one zapisane w pamięci urządzenia.

rozumiem