Szczecin, Bezrzecze

Lokal na sprzedaż

Opis nieruchomości

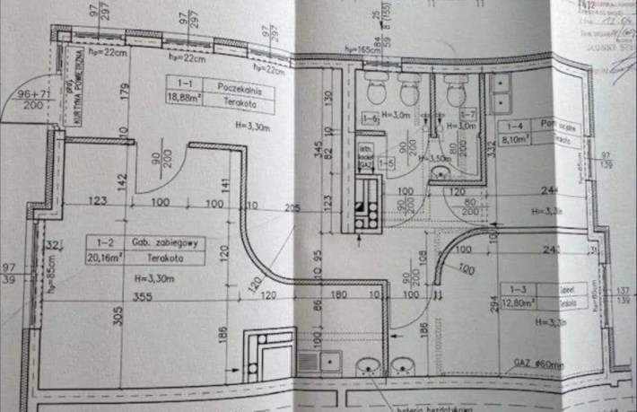
Na sprzedaż lokal użytkowy o powierzchni 66,86 m², wykończony w wysokim standardzie, obecnie przystosowany do prowadzenia działalności medycznej. Idealny pod gabinety lekarskie lub kosmetologiczne.

W skład lokalu wchodzą:

  • gabinet zabiegowy – 20,16 m²

  • gabinet diagnostyczny – 12,80 m²

  • pomieszczenie socjalne – 8,10 m²

  • przedsionek – 2,40 m²

  • WC z bidetem dla pacjentów – 2,15 m²

  • WC dla personelu – 1,24 m²

Lokal znajduje się na parterze jednopiętrowego budynku, z niezależnym, własnym wejściem. Jest w pełni umeblowany i wyposażony, posiada klimatyzacjęrolety oraz drzwi antywłamaniowe, a także system alarmowy. Dojazd odbywa się drogą asfaltową, z dostępem do miejsc parkingowych.

Na wyposażeniu gabinetów znajdują się m.in.:

  • laser frakcyjny CO₂,

  • laser diodowy LIGHTSHEER ET,

  • IPL HS-320C Yasumi,

  • ewakuator dymu Clean Vac-Smoke,

  • aparat USG,

  • fotel regulowany elektrycznie,

  • fotel regulowany ręcznie.

Lokal jest gotowy do natychmiastowego użytkowania, nie wymaga żadnych nakładów inwestycyjnych ani remontu.

Istnieje możliwość zakupu lokalu bez wyposażenia – cena do negocjacji.

Nota prawna

Opis oferty zawarty na stronie internetowej sporządzany jest na podstawie oględzin nieruchomości oraz informacji uzyskanych od właściciela, może podlegać aktualizacji i nie stanowi oferty określonej w art. 66 i następnych K.C.

Szczegóły oferty

Symbol oferty LH1-LS-41740
Powierzchnia 66,86 m²
Piętro parter
Rodzaj budynku blok
Liczba pięter w budynku 1
Stan lokalu bardzo dobry
Okna PCV
Dojazd asfalt
Ogrzewanie C.O. GAZOWE
Alarm tak
Drzwi antywłamaniowe tak
Możliwość parkowania tak
Rolety antywłamaniowe tak
Witryna wystawowa jest

Pomieszczenia

Liczba pomieszczeń biurowych 2
Liczba pomieszczeń socjalnych 1
Liczba pomieszczeń sanitarnych 2

Kalkulator kredytowy

PLN
%
Wysokość raty

Kalkulator kosztów

PLN
PLN
PLN
PLN
PLN
PLN
%
PLN
Podatek od czynności cywilno-prawnych
Taksa notarialna (opłata notarialna)
VAT od taksy notarialnej (opłaty notarialnej)
Wniosek do WKW
VAT od wniosku do WKW
Prowizja agencji nieruchomości
VAT od prowizji agencji nieruchomości
Wypisy aktu notarialnego - około
RAZEM (cena + opłaty)

Podobne oferty

lokal na sprzedaż - Szczecin, Centrum

lokal na sprzedaż

Szczecin, Centrum
  108,00 m2 6 712,96 zł/m2
lokal na sprzedaż - Szczecin, Centrum

lokal na sprzedaż

Szczecin, Centrum
2 pokoje 40,00 m2 18 625,00 zł/m2
lokal na sprzedaż - Szczecin, Centrum

lokal na sprzedaż

Szczecin, Centrum
5 pokoi 105,00 m2 6 190,48 zł/m2
lokal na sprzedaż - Szczecin, Centrum

lokal na sprzedaż

Szczecin, Centrum
  108,60 m2 7 320,44 zł/m2

Napisz do nas

Proszę wypełnić to pole
Proszę wypełnić to pole
Proszę wypełnić to pole
Proszę wypełnić to pole
Trwa wysyłanie...

Ta strona wykorzystuje pliki cookies w celach statystycznych oraz w celu dostosowania naszych serwisów do indywidualnych potrzeb klientów. Zmiany ustawień dotyczących plików cookie można dokonać w dowolnej chwili modyfikując ustawienia przeglądarki. Korzystanie z tej strony bez zmian ustawień dotyczących cookies oznacza, że będą one zapisane w pamięci urządzenia.

rozumiem