Szczecin, Śródmieście, Jagiellońska

Lokal na wynajem

Opis nieruchomości

Do wynajęcia lokal gastronomiczny położony przy ul. Jagiellońskiej.

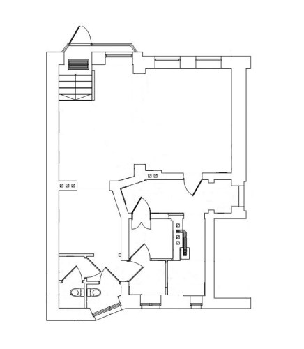
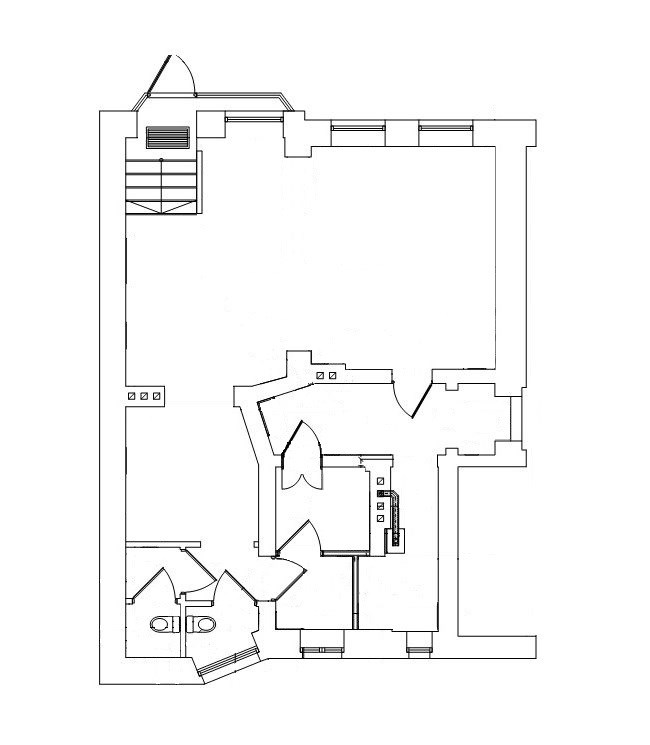
Lokal położony na parterze, z dużymi witrynami. Wejście z poziomu ulicy.

Rozkład pomieszczeń: duża sala główna w kształcie litery L, zaplecze kuchenne - kuchnia i zmywak, zaplecze socjalne, dwa pomieszczenia wc -
dla klientów i dla personelu. W lokalu mogą pozostać stoły i krzesła.

Ogrzewanie gazowe. Dodatkowo oprócz czynszu najmu najemca pokrywa czynsz do do wspólnoty w kwocie około 460,00 zł oraz opłaty za media: gaz, prąd, wodę, odprowadzenie ścieków, wywóz śmieci oraz reklamę.

Kaucja do uzgodnienia.

Polecam.

Nota prawna

Opis oferty zawarty na stronie internetowej sporządzany jest na podstawie oględzin nieruchomości oraz informacji uzyskanych od właściciela, może podlegać aktualizacji i nie stanowi oferty określonej w art. 66 i następnych K.C.

Szczegóły oferty

Symbol oferty NGK-LW-512
Powierzchnia 79,14 m²
Piętro parter
Rodzaj budynku kamienica
Standard
Opłaty w czynszu administracja, fundusz remontowy
Opłaty wg liczników gaz, prąd, woda
Liczba pięter w budynku 4
Stan lokalu bardzo dobry
Stan prawny Własność
Typ kaucji do uzgodnienia
Mies. czynsz admin. 460 PLN
Okna PCV
Rodzaj lokalu jednopoziomowy
Przeznaczenie lokalu gastronomia
Dojazd asfalt
Otoczenie centrum miasta
Usytuowanie jednostronne
Położenie lokalu w głównym ciągu pieszych
Witryna wystawowa duża
Wejście od ulicy
Klucze tak

Lokalizacja

Podobne oferty

lokal na wynajem - Szczecin, Krzekowo

lokal na wynajem

Szczecin, Krzekowo
  230,00 m2 21,74 zł/m2
lokal na wynajem - Szczecin, Śródmieście

lokal na wynajem

Szczecin, Śródmieście
  120,00 m2 57,89 zł/m2
lokal na wynajem - Szczecin, Płonia

lokal na wynajem

Szczecin, Płonia
  200,00 m2 24,50 zł/m2
lokal na wynajem - Szczecin, Książąt pomorskich

lokal na wynajem

Szczecin, Książąt pomorskich
  140,00 m2 35,71 zł/m2

Napisz do nas

Proszę wypełnić to pole
Proszę wypełnić to pole
Proszę wypełnić to pole
Proszę wypełnić to pole
Trwa wysyłanie...

Ta strona wykorzystuje pliki cookies w celach statystycznych oraz w celu dostosowania naszych serwisów do indywidualnych potrzeb klientów. Zmiany ustawień dotyczących plików cookie można dokonać w dowolnej chwili modyfikując ustawienia przeglądarki. Korzystanie z tej strony bez zmian ustawień dotyczących cookies oznacza, że będą one zapisane w pamięci urządzenia.

rozumiem