Stargard, Stare Miasto

Lokal na wynajem

Opis nieruchomości

Atrakcyjny, zmodernizowany lokal użytkowy w prestiżowej lokalizacji

Prezentujemy wyjątkowy, parterowy lokal o powierzchni 173 m², położony w samym sercu Starego Miasta w Stargardzie, przy ulicy Chrobrego, w sąsiedztwie Centrum Nauki Filar i Bramy Wałowej.
Lokal po generalnym remoncie, dostępny od zaraz, doskonały na działalność usługową, szkoleniową, eventową, handlową lub medyczną.



STANDARD I UKŁAD POMIESZCZEŃ
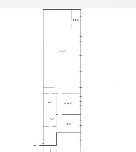
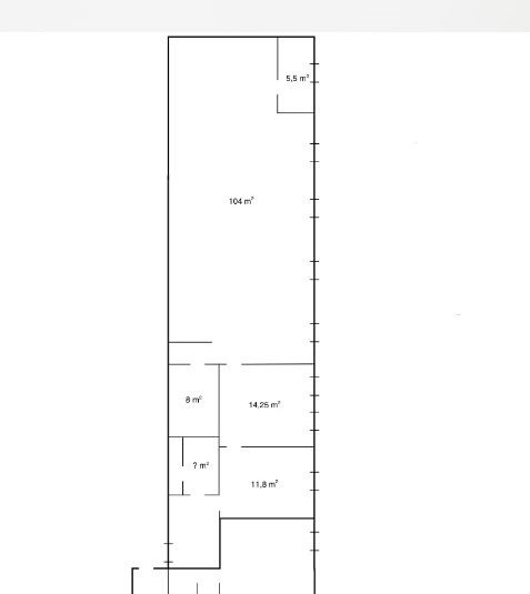
    •    Sala główna ok. 104 m² – jasna i przestronna, z czterema dużymi oknami (205×137 cm) wyposażonymi w żaluzje antywłamaniowe,
    •    Elegancka toaleta dla klientów w części głównej sali,
    •    Zaplecze podzielone na trzy pomieszczenia:
    •    część kuchenna,
    •    zmywak z dużym zlewem i zmywarką,
    •    pomieszczenie socjalne z drugą toaletą 
    •    Miejsce na szatnię dla pracowników,
    •    Drugie wejście od zaplecza z rampą dostawczą, teren ogrodzony,
    •    Podpiwniczenie – dodatkowa przestrzeń magazynowa,
    •    Monitoring wizyjny obejmujący cały obiekt.

Załączony rzut został wykonany wyłącznie w celach poglądowych, aby ułatwić orientację w układzie pomieszczeń. Rzut nie pochodzi od architekta – wymiary mogą się nieznacznie różnić od rzeczywistych.



WYPOSAŻENIE I TECHNOLOGIA
    •    Dwie klimatyzacje Kaisai Eco z funkcją grzania,
    •    Pompa ciepła LG ThermaV (2023) + ogrzewanie podłogowe,
    •    Nowa instalacja elektryczna i system alarmowy,
    •    Monitoring wewnętrzny i zewnętrzny,
    •    Zaplecze wyposażone: zmywak, zmywarka, lodówka, mikrofala, kuchenka podręczna, stoły robocze,
    •    Sala wyposażona: stoły, krzesła, rzutnik multimedialny,
    •    Brak gazu, prąd 16 kW, woda i kanalizacja z sieci miejskiej.



MOŻLIWOŚCI WYKORZYSTANIA

Obiekt przystosowany jest do organizacji wydarzeń i zajęć grupowych:
    •    Imprezy okolicznościowe z przestrzenią do tańca: do 50 osób,
    •    Szkolenia, warsztaty, prezentacje: do 70 osób.

Lokal idealnie sprawdzi się jako:
    •    przestrzeń usługowa (biuro, showroom, studio),
    •    sala szkoleniowa lub warsztatowa,
    •    placówka dziennego pobytu / klub seniora,
    •    studio fitness, joga, taniec, rekreacja,
    •    miejsce spotkań, wydarzeń, kursów, prezentacji,
    •    lokal handlowy – sklep specjalistyczny, apteka, drogeria,
    •    gabinet medyczny lub kosmetyczny, poradnia, punkt rehabilitacyjny.
    •    punkt gastronomiczny/ kawiarnia/ catering z możliwością  obsługi imprez okolicznościowych ( obecnie bez gotowania na miejscu, tylko podgrzewanie i serwis), 
    •    możliwość uzyskania koncesji na sprzedaż alkoholu, lokal wcześniej ja posiadał ( tawerna, sklep), pomimo  bliskości szkoły . 


WARUNKI NAJMU
    •    3 990 zł netto/mies. – lokal bez wyposażenia,
    •    4 990 zł netto/mies. – lokal z pełnym wyposażeniem,
    •    Kaucja: równowartość dwóch miesięcznych czynszów brutto
    •    Wynagrodzenie biura: opłata jednorazowa -równowartość jednomiesięcznego czynszu,
    •    Najemca podpisuje na siebie umowy: prąd, woda, odpady,
    •    Wymagane ubezpieczenie OC Firmy  na kwotę minimum 400 000 zł.



ATUTY NIERUCHOMOŚCI
    •    Po generalnym remoncie – wysoki standard wykończenia, gotowy do użytkowania,
    •    Dwie klimatyzacje + pompa ciepła + ogrzewanie podłogowe,
    •    Monitoring, system alarmowy, dwa wejścia, zaplecze z rampą,
    •    Duże okna z ekspozycją od głównej ulicy, reprezentacyjna lokalizacja,
    •    Doskonała lokalizacja w zabytkowym sercu Stargardu, gotowy do natychmiastowego użytkowania.

Jeśli szukasz miejsca na swój biznes- serdecznie zapraszam do kontaktu i umówienia prezentacji. Może ta nieruchomość czeka właśnie na Ciebie.

Prezentacja nieruchomości przy udziale agenta nieruchomości wiąże się z obowiązkiem podania swoich danych osobowych a także wyrażeniem pisemnej zgody na wykonanie usługi pośrednictwa w najmie nieruchomości.
 

Nota prawna

Opis oferty zawarty na stronie internetowej sporządzany jest na podstawie oględzin nieruchomości oraz informacji uzyskanych od właściciela, może podlegać aktualizacji i nie stanowi oferty określonej w art. 66 i następnych K.C.

Szczegóły oferty

Symbol oferty 4KAT-LW-22685
Powierzchnia 173,00 m²
Piętro parter
Rodzaj budynku budynek wolnostojący
Kaucja zabezp. 9815
Standard
Opłaty wg liczników woda, prąd
Stan lokalu bardzo dobry
Typ kaucji dwumiesięczna
Okna PCV
Przeznaczenie lokalu biurowo - magazynowy, biurowy, handlowo-usługowy, handlowy, inny, magazynowy, gastronomia
Dojazd asfalt
Ogrzewanie pompa ciepła
Usytuowanie dwustronne
Możliwość parkowania tak

Podobne oferty

lokal na wynajem - Stargard

lokal na wynajem

Stargard
  120,00 m2 41,67 zł/m2

Napisz do nas

Proszę wypełnić to pole
Proszę wypełnić to pole
Proszę wypełnić to pole
Proszę wypełnić to pole
Trwa wysyłanie...

Ta strona wykorzystuje pliki cookies w celach statystycznych oraz w celu dostosowania naszych serwisów do indywidualnych potrzeb klientów. Zmiany ustawień dotyczących plików cookie można dokonać w dowolnej chwili modyfikując ustawienia przeglądarki. Korzystanie z tej strony bez zmian ustawień dotyczących cookies oznacza, że będą one zapisane w pamięci urządzenia.

rozumiem