Opis nieruchomości
Do wynajęcia duży lokal użytkowy, dwupoziomowy (parter z witryną oraz pomieszczenia piwniczne) położony przy ul. Księcia Barnima III Wielkiego.
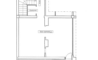
Lokal położony jest w budynku handlowo-usługowym, posiada dwa wejścia: jedno od frontu, drugie z tyłu budynku dla dostawców. Lokal składa się z dziewięciu pomieszczeń:
Parter: sala główna z witryną, biuro oraz kantorek. Łączna powierzchnia parteru 48,70 m2
Piwnica: cztery pomieszczenia magazynowe, zaplecze socjalne z kuchnią i pralnią oraz wc. Łączna powierzchnia piwnic 81,30 m2.
Ogrzewanie z sieci miejskiej, ciepła woda - podgrzewacz elektryczny.
Opłaty:
- czynsz najmu 3 500,00 zł netto (do czynszu najmu należy doliczyć podatek VAT w stawce 23%),
- czynsz do spółdzielni 1 007,97 zł netto (do czynszu najmu należy doliczyć podatek VAT w stawkach: 8% woda i kanalizacja, 23% eksploatacja, ogrzewanie oraz pozostałe składowe czynszu),
- prąd wg zużycia.
- kaucja dwumiesięczna.
Obecnie w lokalu prowadzona jest działalność związana z sprzedażą artykułów spożywczych i monopolowych.
Możliwość wynajęcia dodatkowej powierzchni 48,95 m2 (parter z witryną i dodatkowym wejściem).
Polecam.
Nota prawna
Opis oferty zawarty na stronie internetowej sporządzany jest na podstawie oględzin nieruchomości oraz informacji uzyskanych od właściciela, może podlegać aktualizacji i nie stanowi oferty określonej w art. 66 i następnych K.C.