Szczecin, Mierzyn

Dom na sprzedaż

Opis nieruchomości

Na sprzedaż dom w zabudowie bliźniaczej. Całkowita powierzchnia budynku wynosi 156,24 m2, z czego powierzchnia użytkowa to 115,85 m2, w tym 17,03 m2 garażu. Działka, na której leży budynek, ma powierzchnię  318,25 m2.

 

Dom został solidnie zbudowany, fundamenty to konstrukcje betonowe zbrojone stalą, a dach pokryty jest dachówką ceramiczną. Ściany zbudowane są z cegieł porotherm, co gwarantuje doskonałą izolację. Ogrzewanie w domu jest gazowe, podłogowe, co zapewnia komfort i oszczędność energetyczną.

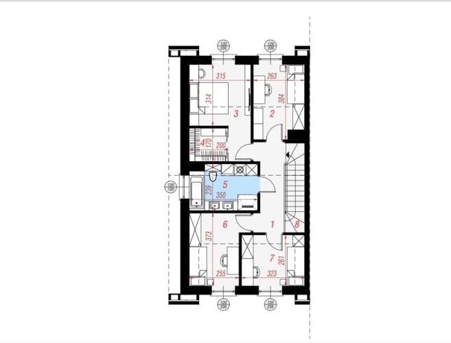
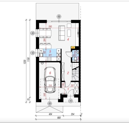
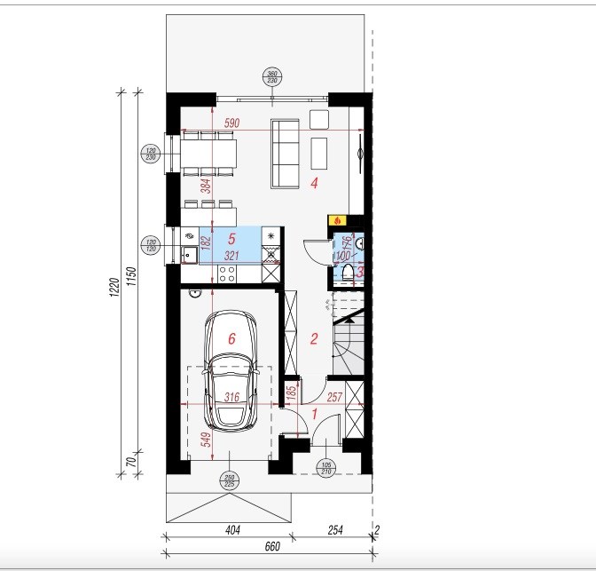
Parter: 

salon połączony z aneksem kuchennym, wyjście na duży taras, wc , z holu przejście do garażu. 

Na podłogach terakota, ściany gładzone malowane, wc wykończone w nowej glazurze i terakocie.

Piętro : 4 sypialnie ( podłogi panele),  łazienka z kabina i wanną ( glazura i terakota) 

Ogrzewanie w całym domu podłogowe z pieca gazowego dwuobiegowego, dodatkowo kominek 

 Zapraszamy na prezentacje.

Nota prawna

Opis oferty zawarty na stronie internetowej sporządzany jest na podstawie oględzin nieruchomości oraz informacji uzyskanych od właściciela, może podlegać aktualizacji i nie stanowi oferty określonej w art. 66 i następnych K.C.

Szczegóły oferty

Symbol oferty LH1-DS-41818
Powierzchnia 156,24 m²
Powierzchnia użytkowa 156,24 m²
Powierzchnia działki 318 m²
Liczba pokoi 5
Rodzaj domu bliźniak
Rodzaj budynku bliźniak
Standard
Liczba pięter w budynku 2
Garaż 1
Stan prawny Własność
Okna PCV
Liczba tarasów 1
Kształt działki prostokąt
Pokrycie dachu dachówka
Stan budynku do zamieszkania
Rok budowy 2025
Gaz jest
Dojazd płyty betonowe
Otoczenie działki niezabudowane
Ogrzewanie C.O. GAZOWE, C.O. PODŁOGOWE GAZOWE, KOMINEK
Tarasy taras duży
Prąd jest
Kanalizacja szambo

Pomieszczenia

Podłogi pokoi panele
Typ kuchni aneks kuchenny połączony z jadalnią i salonem
Rodzaj kuchni aneks kuchenny
Podłoga kuchni terakota
Typ łazienki razem z wc
Liczba łazienek 1
Liczba WC 1
Glazura WC nowego typu
Podłoga WC terakota
Liczba przedpokoi 2

Lokalizacja

Kalkulator kredytowy

PLN
%
Wysokość raty

Kalkulator kosztów

PLN
PLN
PLN
PLN
PLN
PLN
%
PLN
Podatek od czynności cywilno-prawnych
Taksa notarialna (opłata notarialna)
VAT od taksy notarialnej (opłaty notarialnej)
Wniosek do WKW
VAT od wniosku do WKW
Prowizja agencji nieruchomości
VAT od prowizji agencji nieruchomości
Wypisy aktu notarialnego - około
RAZEM (cena + opłaty)

Podobne oferty

dom na sprzedaż - Szczecin, Dąbie

dom na sprzedaż

Szczecin, Dąbie
9 pokoi 136,60 m2 7 320,64 zł/m2
dom na sprzedaż - Szczecin, Książąt pomorskich

dom na sprzedaż

Szczecin, Książąt pomorskich
5 pokoi 210,00 m2 5 666,67 zł/m2
dom na sprzedaż - Szczecin, Gumieńce, Zabużańska

dom na sprzedaż

Szczecin, Gumieńce, Zabużańska
5 pokoi 175,03 m2 7 141,63 zł/m2
bez prowizji
dom na sprzedaż - Szczecin, Płonia

dom na sprzedaż

Szczecin, Płonia
6 pokoi 160,00 m2 6 872,25 zł/m2

Napisz do nas

Proszę wypełnić to pole
Proszę wypełnić to pole
Proszę wypełnić to pole
Proszę wypełnić to pole
Trwa wysyłanie...

Ta strona wykorzystuje pliki cookies w celach statystycznych oraz w celu dostosowania naszych serwisów do indywidualnych potrzeb klientów. Zmiany ustawień dotyczących plików cookie można dokonać w dowolnej chwili modyfikując ustawienia przeglądarki. Korzystanie z tej strony bez zmian ustawień dotyczących cookies oznacza, że będą one zapisane w pamięci urządzenia.

rozumiem